
Projeto Pousada Sesc
Friburgo- RJ
Projeto de autoria principal do renomado arquiteto James Lawrence, que neste projeto visava a ampliação da infraestrutura do "Hotel Sesc Friburgo" onde nosso escritório se notabilizou por assessoria criativa e principalmente no desenvolvimento dos projetos executivos, normatizando os desenhos e auxiliando nas especificações do materiais aplicados.
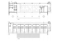
O projeto arquitetônico de reforma da Unidade, em steel frame, com foco sustentável. O hotel passa a utilizar o sistema de captação de água de chuva, com capacidade de armazenamento de 25,5 mil litros e um sistema fotovoltaico com 148 módulos, projetados para gerar energia sustentável para o hotel, minimizando a emissão de CO2 no meio ambiente.
Dentro do complexo do hotel, os hóspedes ainda têm acesso a toda a oferta de serviços da Unidade Sesc Nova Friburgo, o que inclui: teatro, sala de leitura, sauna e quadras esportivas, entre outros. O estabelecimento é muito procurado nos meses de julho e agosto devido, à facilidade para se desfrutar das atrações do Festival Sesc de Inverno, como shows musicais e espetáculos teatrais.
Ficha Técnica:
Área construída:1.920,00 m²
Nº de pavimentos; 2
Data do projeto: Novembro 2019
Projeto:
Arquitetura:
Leo Mattos & Arquitetos / James Lawrence / Fabio Vergaças




![]() | ![]() | ![]() | ![]() | ![]() | ![]() |
|---|---|---|---|---|---|
![]() | ![]() | ![]() | ![]() | ![]() | ![]() |
![]() | ![]() | ![]() | ![]() | ![]() |

















